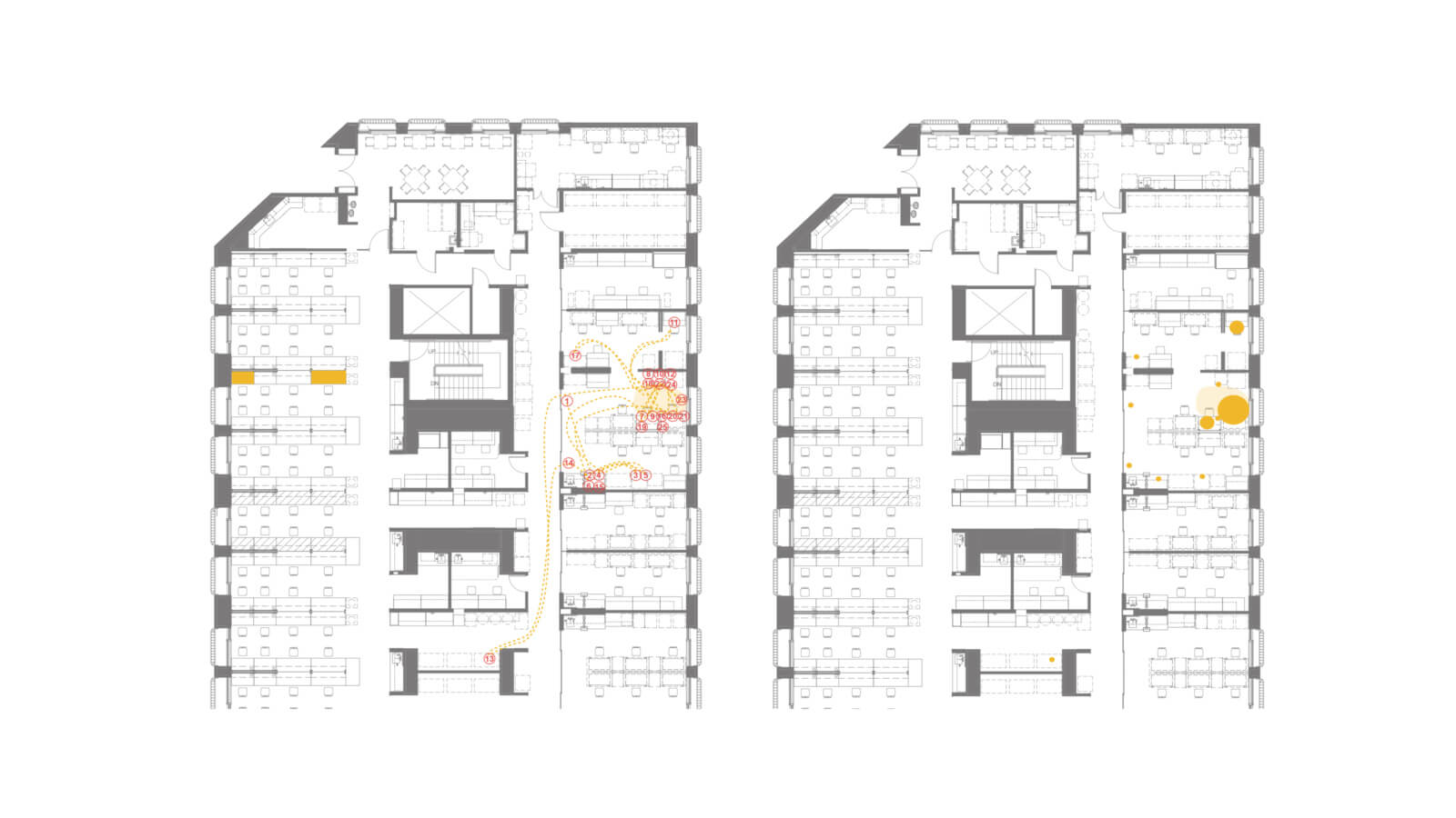
In order to better design laboratory space that meets the needs of particular sciences, PAYETTE design teams occasionally conduct shadow studies with laboratories. Shadow studies allow designers to closely observe users in order to understand how their work utilizes the space, frequently for PAYETTE projects, a laboratory.
BLOG POSTS
TEAM
Challenge
During tours of academic research laboratories and similar facilities in 2006, design teams noticed the researchers utilized the laboratories and support spaces differently than expected. The design team observed occupants favoring support spaces to complete their work rather than the laboratory spaces. This observation led the design team to question the current laboratory planning practices and thus began to explore alternatives that better align with current trends in the sciences.
Solution
Current laboratory planning placed the performance of the majority of laboratory work on the laboratory bench or in the fume hoods with supplemental work completed in the support spaces. However, the design team observed in many scientific disciplines, the reverse is true. Therefore, current laboratory planning principles are misaligned with a key shift in the nature of the scientific research. Shadow studies allow designers to observe current laboratory practices in the laboratory environment and adjust their planning approach to provide state of the art laboratory space for the future.